POINT 128
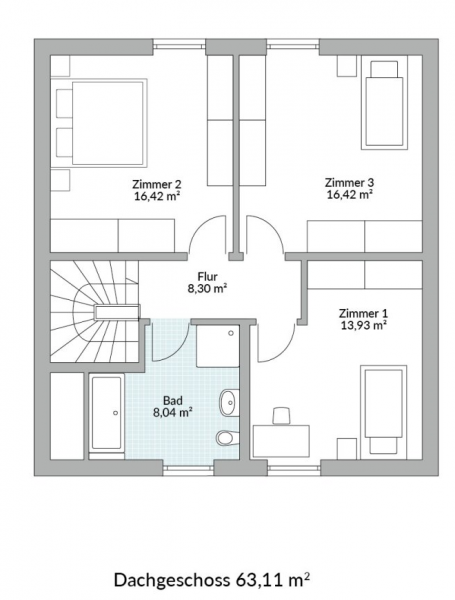
Eineinhalbgeschossiges Haus mit vier Zimmern, offener Küche, Bad, Gäste-WC, Technikraum und Diele, Satteldach mit 40° Dachneigung, Kniestock 0,75 m.
EINZUGSFERTIG
inklusive Maler, Fliesen, Sanitär, Vinyl, Teppichboden und Technikpaket (Luft-Wasser-Wärmepumpe + Fußbodenheizung + zentrale Lüftungsanlage mit Wärmerückgewinnung) ab Oberkante Bodenplatte
PREIS:
228.300 €


BASISINFORMATIONEN
NUTZFLÄCHE
129,16 m²
ANZAHL DER GESCHOSSE
1,5
ANZAHL DER ZIMMER
4
ANZAHL DER BADEZIMMER
1
DACHNEIGUNG
40°
KNIESTOCK
75 cm
GARAGE
nein

