PERFECT 120 CUBE
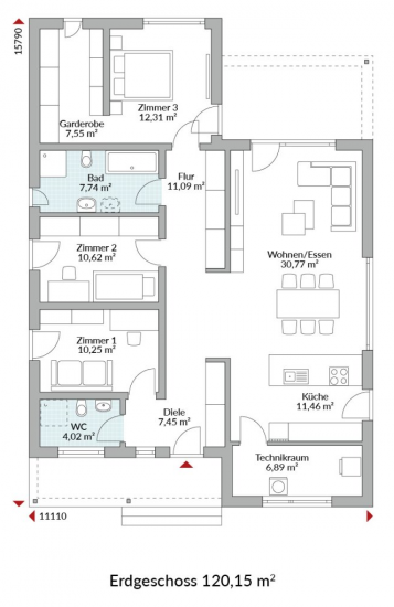
Winkelbungalow mit vier Zimmern, Ankleide, offener Küche, zwei Bädern, Gäste-WC, Speisekammer, Technikraum, Flur und großer Diele. Flachdach inkl. Haustür- und Terrassenüberdachung.
EINZUGSFERTIG
inklusive Maler, Fliesen, Sanitär, Vinyl, Teppichboden und Technikpaket (Luft-Wasser-Wärmepumpe + Fußbodenheizung + zentrale Lüftungsanlage mit Wärmerückgewinnung) ab Oberkante Bodenplatte
PREIS:
269.300 €













BASISINFORMATIONEN
NUTZFLÄCHE
120,15 m²
ANZAHL DER GESCHOSSE
1
ANZAHL DER ZIMMER
4
ANZAHL DER BADEZIMMER
1
DACHNEIGUNG
0°
GARAGE
nein
