PARTNER 135
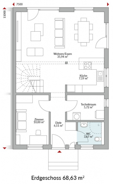
Eineinhalbgeschossige Doppelhaushälfte mit fünf Zimmern, , Küche, Bad, Gäste-WC, Technikraum und Diele. Satteldach mit 40° Dachneigung, Kniestock 1,00 m und Satteldachgaube.
EINZUGSFERTIG
inklusive Maler, Fliesen, Sanitär, Vinyl, Teppichboden und Technikpaket (Luft-Wasser-Wärmepumpe + Fußbodenheizung + zentrale Lüftungsanlage mit Wärmerückgewinnung) ab Oberkante Bodenplatte
PREIS:
258.200 €


BASISINFORMATIONEN
NUTZFLÄCHE
134,85 m²
ANZAHL DER GESCHOSSE
1,5
ANZAHL DER ZIMMER
5
ANZAHL DER BADEZIMMER
1
DACHNEIGUNG
40°
KNIESTOCK
100 cm
GARAGE
nein

