PARTNER 116W
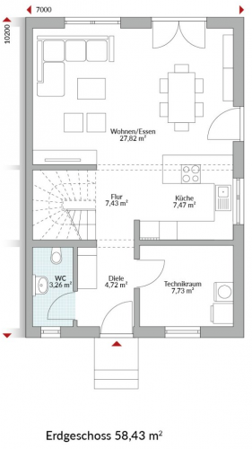
Zweigeschossige Doppelhaushälfte mit vier Zimmern, Ankleide, Küche, Bad, Gäste-WC, Technikraum und Diele. Walmdach mit 22° Dachneigung.
EINZUGSFERTIG
inklusive Maler, Fliesen, Sanitär, Vinyl, Teppichboden und Technikpaket (Luft-Wasser-Wärmepumpe + Fußbodenheizung + zentrale Lüftungsanlage mit Wärmerückgewinnung) ab Oberkante Bodenplatte
PREIS:
229.000 €


BASISINFORMATIONEN
NUTZFLÄCHE
115,72 m²
ANZAHL DER GESCHOSSE
2
ANZAHL DER ZIMMER
4
ANZAHL DER BADEZIMMER
1
DACHNEIGUNG
22°
GARAGE
nein

